
Sahara Plana
Poder absoluto. Diseña tu cortina enrrollable ciega con un diseño impecable
DISEÑO
La Sahara Plana redefine la seguridad semi-industrial: acero Pintro calibre 22, ingeniería de triple multiplicación y la precisión de un motor Manaras. Resistencia que se siente, tecnología que no falla.
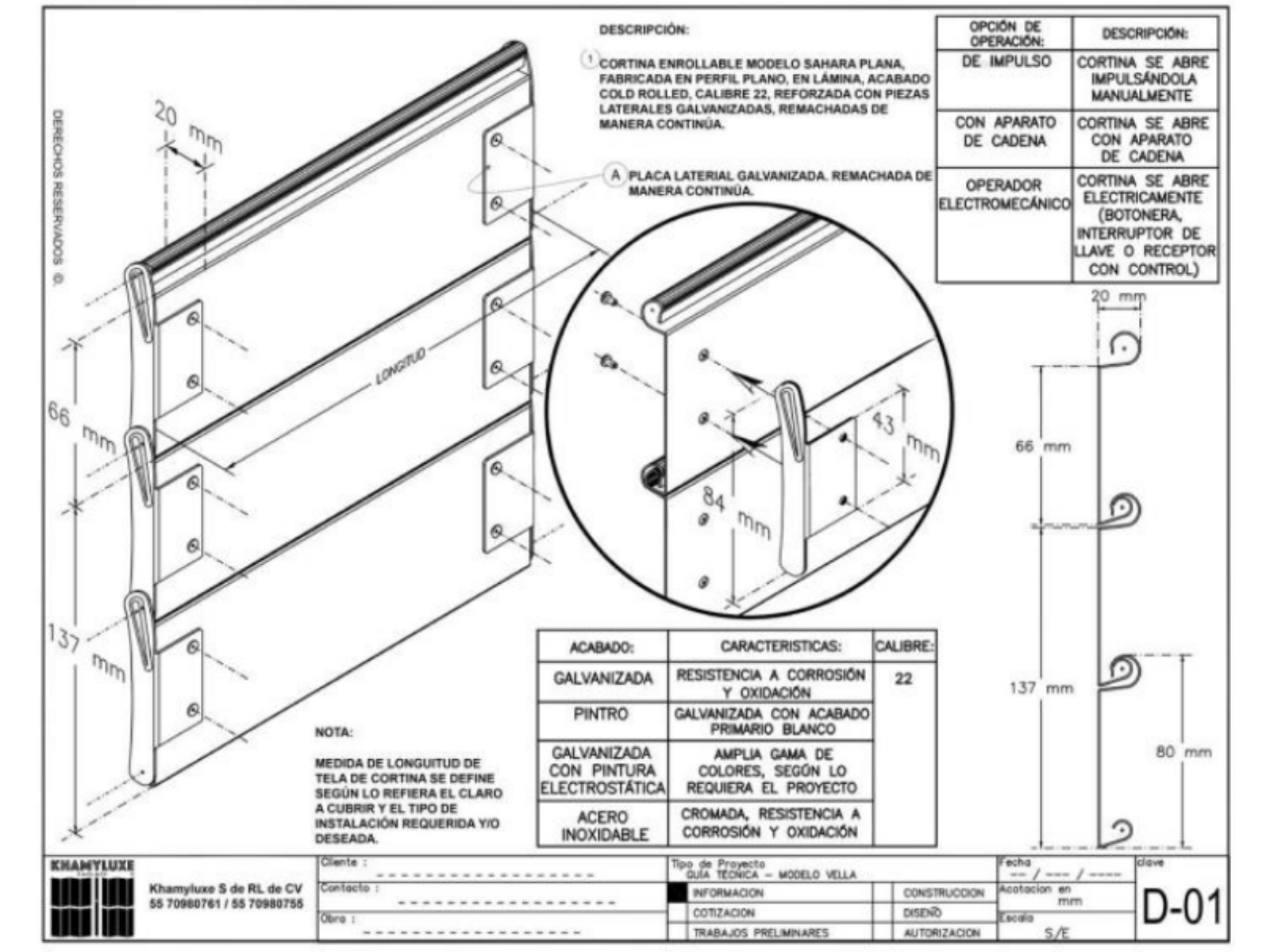
Cortina enrrollable ciega semi-industrial, de accionamiento manual de impulso, modelo Sahara Plana, diseñada especialmente para bodegas, fabricada con lámina pintro, calibre 22, en color blanco, remachada continuamente con piezas laterales galvanizadas; batiente de ángulo doble galvanizado de 1-1/2” x 1/8”, el cual incluye pasadores portacandados; guías de lámina galvanizada calibre 14, sistema de balanceo fabricado con tubo mecánico cédula 30, con poleas de aluminio y resortes de acero importado (USA) templado al alto carbón, con una vida útil de 10,000 ciclos.

Mecanismos de cadena reforzados y embalados con triple multiplicación de engranes, montados en placas de acero de 1⁄4 de grueso, flecha de tubo de 4” de diámetro, resortes de acero importado templados en aceite, con tensores para evitar la deflexión de las cortinas, motor Manaras de 1/2 hp, accionamiento por medio de operador comercial de importación (Canadá), marca Manarás, modelo OPH KH, de uso limitado a seis ciclos por hora, alimentación monofásica a 110v, equipados con sistema paracaídas para accionar el modo de operación manual por medio de cadena sin necesidades de clutch manual de desembrague, equipado con micros de paro automáticos al llevar al nivel inferior y superior con interruptores de llave.
Medida de los paneles
Ritmo y Resistencia
La Sahara Plana no solo protege; está diseñada para durar. Su estructura se basa en tabletas de 84 mm de alto con una franja plana de 49 mm que proyecta una imagen de solidez y orden. Gracias a su remachado continuo en placas de 43 mm, garantizamos una tela inalterable que resiste el uso intensivo sin perder su alineación. Es la unión perfecta entre la fuerza de la lámina Pintro y una mecánica de precisión que protege la vida útil de cada componente.


Batiente
Cierre Perfecto
La base del modelo Sahara Plana es un ejercicio de fuerza y detalle. Su batiente de ángulo doble galvanizado, remachado a mano con técnica de golpe, ofrece una rigidez estructural que desafía cualquier intento de intrusión. Acabado con pintura electrostática en color aluminio, no solo resiste la corrosión, sino que integra de forma elegante los porta candados de alta seguridad. Es el punto donde el diseño inteligente se encuentra con la resistencia pura, garantizando que tu espacio permanezca exactamente como lo dejaste.

PANELES
Pureza Industrial
El modelo Sahara Plana utiliza lámina Pintro Calibre 22, un material que combina la tenacidad del acero con un acabado de pintura horneada de alta resistencia. Su diseño de remachado continuo con piezas laterales galvanizadas asegura un funcionamiento suave, mientras que el batiente de ángulo doble refuerza la base contra intentos de apalancamiento. Es la unión perfecta entre una estética minimalista y un blindaje estructural que no conoce concesiones.

Dimensiones de Cortina
Proyectos sin Limites
El modelo Sahara Plana ha sido diseñado para desafiar los límites del espacio. Entendemos que cada proyecto industrial tiene exigencias únicas; por ello, nuestras dimensiones máximas son tan flexibles como las necesidades de tu obra. Ya sea que tu diseño requiera una altura optimizada para sistemas de elevación motorizados o un ancho monumental para el tránsito de carga pesada, nuestro equipo de ingeniería calibra cada componente para garantizar un desempeño impecable. En Khamyluxe, tu visión define la escala; nosotros entregamos la precisión.

Garantia
Tranquilidad Absoluta
Creemos en la fuerza de nuestra ingeniería y en la precisión de nuestras manos. Por ello, el modelo Sahara Plana cuenta con una garantía integral de un año tanto en materiales como en instalación. Desde el primer ciclo de apertura hasta el último detalle del montaje, Khamyluxe te acompaña para asegurar que tu inversión funcione con la perfección que tu negocio exige. Es nuestra forma de decirte que estamos ahí, respaldando cada componente y cada ajuste, para que tú solo te preocupes por crecer.

Motor
Potencia Infatigable
El modelo Sahara Plana cobra vida a través del operador Manaras OPH KH de 1/2 HP. Diseñado en Canadá para el rigor industrial, este motor entrega un rendimiento constante de hasta 144 ciclos diarios. Gracias a su mecanismo de triple multiplicación de engranes y su sistema de seguridad “paracaídas”, la transición entre el modo automático y manual es instantánea y sin esfuerzo. Es una mecánica de alta precisión de 41 RPM que garantiza que el acceso a tu espacio sea siempre fluido, seguro y bajo tu control total.

Guías Fijas
Estabilidad en cada Trayecto
El modelo Sahara Plana se desplaza sobre guías fijas de lámina galvanizada Calibre 14, diseñadas para ofrecer un soporte estructural masivo. Disponibles en dimensiones de 7 x 3.3 cm y 5 x 3.3 cm, estas guías actúan como el canal de precisión que mantiene la tela de acero alineada ante cualquier circunstancia. Es una ingeniería de alta resistencia que garantiza un deslizamiento silencioso y una protección lateral que desafía el paso del tiempo.

PREVIOS
Preparación Técnica
La excelencia del modelo Sahara Visión reside en sus tabletas de 84mm con franjas de 49mm y microperforaciones de 1/8″. Esta ingeniería se integra perfectamente sobre muros sólidos o soportería de PTR blanco Calibre 11, asegurando que la base estructural sea tan robusta como la cortina misma. Cada instalación es evaluada para garantizar que los soportes previos cumplan con las especificaciones de carga y alineación del proyecto.

ACABADO
Acabado Estético
El acabado del modelo Sahara Plana redefine la protección exterior. Mediante un proceso de curado a 220°C, aplicamos una capa de pintura poliéster Tiger de 180 micras, creando una superficie de dureza excepcional y tono aluminio satinado. Este recubrimiento no solo ofrece una estética impecable y moderna, sino que actúa como un escudo impenetrable ante la corrosión, los rayos UV y la abrasión. Es la seguridad de saber que tu fachada mantendrá su integridad y su brillo, sin importar las condiciones del entorno.

MATERIALES SUSTITUTOS
Sin Sustitutos
El modelo Sahara Plana es una pieza de ingeniería donde la forma y la función son inseparables. Cada resorte de acero templado en USA y cada engrane de su motor canadiense han sido calibrados para trabajar exclusivamente entre sí. En Khamyluxe, no admitimos materiales sustitutos porque entendemos que la seguridad de tu patrimonio depende de la integridad del sistema completo. Al elegir Sahara Plana, eliges un estándar de calidad que no acepta imitaciones, garantizando que tu inversión sea tan sólida hoy como en los años por venir.

Funcionalidad
Equilibrio Perfecto
La Sahara Plana es el resultado de una obsesión por la durabilidad. Cada componente, desde los resortes de acero templado al alto carbón hasta el tubo mecánico Cédula 30, ha sido seleccionado para ofrecer una vida útil de 10,000 ciclos. Su sistema de balanceo con poleas de aluminio asegura un accionamiento manual de impulso tan suave que desafía el peso del acero calibre 22. Es una infraestructura diseñada para trabajar en silencio, permitiendo que tu negocio se mueva con la precisión de la ingeniería estadounidense y canadiense.

Guías Levadizas
Libertad Absoluta
El modelo Sahara Plana rompe las barreras convencionales con su sistema de guías dobles levadizas. Diseñadas para integrarse en espacios donde cada centímetro cuenta, estas guías motorizadas de lámina galvanizada Calibre 14 se elevan junto con la cortina, despejando el vano por completo. Impulsadas por un motor tubular y cables de acero de alta resistencia, ofrecen un movimiento angular preciso y silencioso. Es la máxima expresión de una seguridad robusta que sabe cuándo apartarse para dejar pasar tu productividad.

LIMPIEZA
Preserva la Calidad
La Sahara Plana es una máquina de precisión que merece un cuidado a su altura. Para preservar la pureza de su acabado Pintro Blanco, recomendamos una limpieza técnica con thinner y un paño de microfibra, eliminando cualquier rastro de grasa o contaminación industrial sin esfuerzo. Para asegurar que su ingeniería de 10,000 ciclos se mantenga silenciosa y fluida, una aplicación de grasa para chasis cada seis meses en los puntos de fricción es todo lo que necesita. Un ritual simple para una seguridad que nunca se detiene.
Ventajas
Para montar orden de fabricación:
Contar con planos aprobados
Ventajas:
Atención 24/7
Servicio personalizado
Trabajamos de la mano con el cliente para ofrecer las mejores propuestas de acuerdo a los tipos de fachadas, asesoría 24/7, apoyo con el diseño y representación de planos en .dwg, facilidad de muestras.
Tiempos de entrega de acuerdo a las necesidades del cliente.
Servicio Post Venta:
Inmediato, Si bien la empresa se encuentra en Ciudad de México, los reportes que llegan haber se atienden el mismo día, cuando son por mala manipulación normalmente lo hacemos por video llamada y se soluciona de inmediato, cuando es un problema físico se atiende un período no mayor a 24 hrs.
Khamyluxe cuenta en un stock de refacciones para atender cualquier imprevisto de manera rápida y eficaz.

Detalles
Principios Básicos
Nuestras cortinas corredizas Khamyluxe, van suspendidas de un riel de aluminio (este puede ir oculto con falso plafón o quedar expuesto), las ruedas embaleradas que se encuentran en la parte superior de la cortina corren libremente por todo el riel, podemos cerrar cualquier tipo de fachada, curva, recta ó mixta, aseguramos la cortina por medio de postes móviles (perforaciones en el riel y barrenos en el piso), estos postes NO son fijos, ya que viajan junto con la cortina, permitiendo tener un espacio más amplio y por consiguiente un mayor tráfico de clientes al local comercial, los postes van integrados en la cortina @ 3.00m ó si el proyecto lo requiere puede ser a una distancia menor.
Tipos de Fachadas
Nuestras cortinas son ideales pata todo tipo de fachadas.
Fachadas lineales.
Fachadas con uno o más frentes, con una sola cortina podemos cerrarlos.
Fachadas con ángulos especiales.
Incluso fachadas con círculos completos.
Requerimientos para poder instalar nuestras cortinas corredizas
El constructor general deberá colocar:
Estructura metálica (PTR de 2″x2″, Cal. 14).
Tablón de madera de pino con dimensiones de 2″x10″ ó 2″x8″ min.
Realización de nichos (área de guardado de la cortina).
Colocación de puertas en los nichos (solo si el proyecto lo requiere).
Debe estar ya colocado el piso para la realización de barrenos en la parte inferior.



